Member postcard | Industrial Design Solutions
Roma Street Bus Interchange

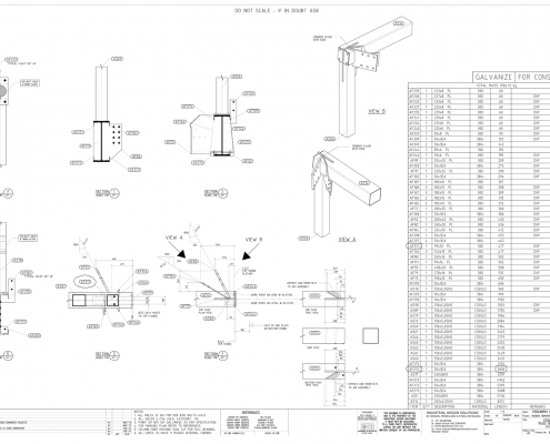
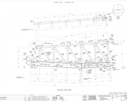
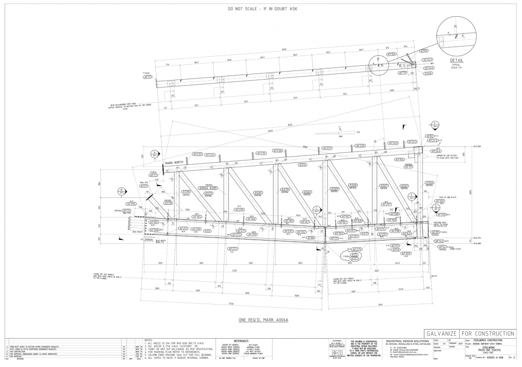
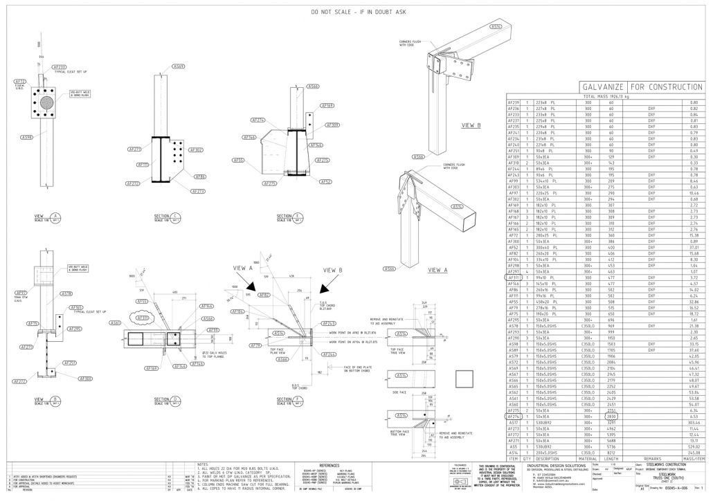
This submission was provided by Keith Virtue of IDS, a ACMA member from Queensland. The project is the Roma Street Coach Terminal situated in the Brisbane CBD. The scope included 3D Cad modelling, project management & structural steel detailing. This project consisted of approx. 100 tonnes of architecturally “interesting” steelwork.
As it turned out, the drafting cost per tonne of steel almost doubled through the course of project delivery due to some significant “mission creep”. Keith has a long-standing relationship with the Brisbane-based fabricator client and performed his role in collaboration with 2 other drafters to get over the initial “hump”.
IDS is always looking for competent & practical collaborators (both ways) and is happy to use whatever software you are comfortable with, as long as the team can all share models in Autocad Solids & the drawing presentations are aesthetically & logically similar. Please see Keith’s website at www.industrialdesignsolutions.com for a bit more insight into his 30 year career as an industrial designer / structural / mechanical drafter.
Roma Street Bus Interchange












